Fire Station Project Overview
This page serves as your trusted source for updates and milestones on the Fire Station Project — keeping our community informed every step of the way.
🚒 New Fire Station – Thank You Voters!
We’re excited to share that the bond measure for Hoodland Fire District #74’s new fire station has officially passed! Click here for the May 20, 2025 Clackamas County Special District Election Results

📍 New Station Location – Dorman Property
The new fire station will be constructed at the Dorman Property, located at:
25400 E Salmon River Road, Welches, OR 97067
This site, the former home of the Mount Hood Community Preschool, is conveniently located just 0.1 miles from our current station, which will make the transition and moving process much easier and more efficient.
We would like to extend a sincere thank you to Clackamas County for donating this land to the District. Their generosity plays a vital role in this project and demonstrates a strong commitment to public safety and community resilience.
🙏 Thank You for Your Support
A heartfelt thank you to our community and voters for supporting this critical project. Your approval of the $19.145 million bond allows us to move forward with replacing our aging facility and enhancing emergency services for the entire district.
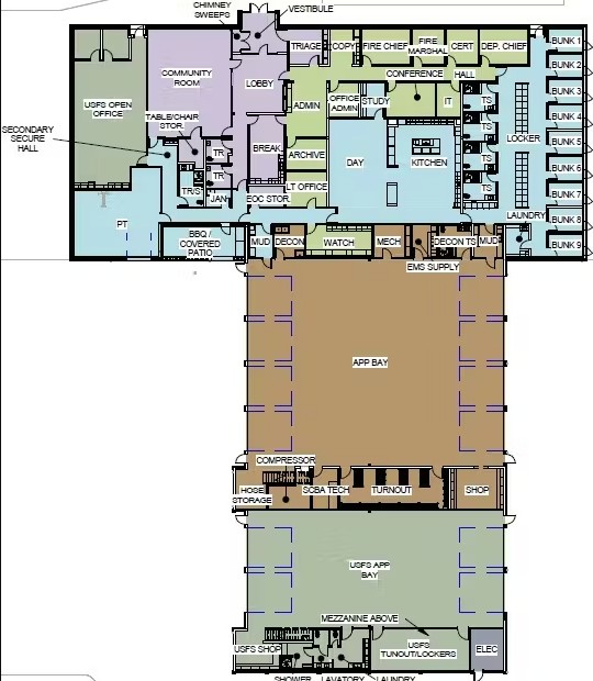
🤝 Partnership with the U.S. Forest Service
We’re also pleased to announce that an agreement has been signed with the U.S. Forest Service. As part of this partnership:
- The U.S. Forest Service will contribute $5.6 million toward the new fire station.
- The facility will include dedicated office space and apparatus bays for Forest Service crews.
- This collaboration will strengthen wildfire response coordination and regional emergency readiness.
👷 Project Team Selected
Through a competitive bid process, the following key partners have been selected to lead the design and construction of the new fire station:
- Owner's Representative: Otak, Inc.
- Architect: Mackenzie Architecture
- General Contractor: Inline Construction
We are excited to work with these experienced teams to bring this project to life.
💰 Project Funding Status
- $19.145 million Bond Approved by Voters: ✅
- U.S. Forest Service Contribution secured: $5.6 million ✅
- Total Project Funding (to date): $24.745 million
- Grant Applications: Actively pursuing additional grant opportunities to supplement project funding and reduce overall costs to taxpayers ✅
We are committed to pursuing grant funding at the federal, state, and local levels to maximize resources and minimize financial impact on the community.
📅 Estimated Project Timeline (Subject to Change)
- Final Design & Site Planning: In Process
- Site Work Start: April 2026
- Building Construction Start: August 2026
- Estimated Completion: July 2027

🏗️ Why We Need a New Station
The current station is outdated and no longer meets the needs of our growing district. The new facility will provide:
- Modern, safe accommodations for firefighters
- Updated training and meeting space
- Larger, safer apparatus bays
- Joint-use space for Hoodland Fire and the U.S. Forest Service
- ADA compliance to improve accessibility for all members of the public
- A dedicated community meeting room to expand opportunities for public engagement, education, and collaboration
- Expanded sleeping quarters to encourage more volunteer firefighters to stay overnight, improving response times and coverage
- Seismic upgrades to ensure the station remains operational during and after a major disaster
- Full code compliance and future-ready infrastructure
📸 Station Renderings
Visualizing the Future of Hoodland Fire's New Main Station 🚒


📬UPDATES
🪚🌲 Training with a Purpose - March 25-27, 2026
Hoodland Fire personnel completed three days of chainsaw training, developing and reinforcing critical skills used during storms, wildfires, and emergency response operations.
As part of this training, crews applied their skills in a practical setting by assisting with tree clearing at the future site of the new Main Fire Station. This effort provided valuable, hands-on experience while also contributing to project cost efficiencies for the community.
We commend our personnel for their dedication and professionalism, and for maintaining a strong focus on training, operational readiness, and responsible stewardship of public resources.

Ground Breaking Ceremony - April 4, 2026
On April 4, 2026, we were pleased to host a groundbreaking ceremony marking the beginning of construction for the new Hoodland Fire Station. We extend our sincere appreciation to the community members, partners, and stakeholders whose support made this milestone possible.
This new facility represents a significant long-term investment in the safety, preparedness, and resilience of the community. In addition, the station will enhance coordinated emergency response efforts with the U.S. Forest Service, further strengthening interagency collaboration.
The project reflects a strong and enduring partnership, as well as a continued commitment to providing high-quality service for years to come. We thank all those who joined us in recognizing this important occasion.

🚜 Land Clearing - April 27, 2026
Land clearing is currently in progress as of April 27, 2026. Crews are actively working on site preparation, including removal of vegetation, debris clearing, and initial grading. All work is being carried out safely and in accordance with project guidelines.
This phase is an important step in preparing the site for upcoming construction activities.

🚧 Site Prep - May 12, 2026
Land clearing has been completed, marking an important early milestone in the project. With the site now cleared, job site preparation is actively underway, including initial staging and readiness work for the next phases of construction.
Crews are continuing to organize the site to support upcoming activities, ensuring the area is properly prepared for grading, utility coordination, and further development work. This phase helps establish a safe and efficient foundation for the construction process moving forward.

📬 Stay Connected – Don’t Miss an Update!
* Inline Construction Project Website
Check back regularly for updates, photos, and milestones as we move forward. Your continued support is helping us build a safer, more resilient future for Hoodland.





